High-return Turnkey Investment In Bannockburn – Large Block, Strong Rental Income
$987,515
High-Return Turnkey Investment in Bannockburn - Large Block, Strong Rental Income
A brand-new, full turnkey home on a generous 576m block, delivering excellent rental returns and long-term growth in one of Logan's fastest-expanding corridors.This off-the-plan house and land opportunity at Lot 10, New Road, Windaroo Green Estate, Bannockburn presents an outstanding option for investors seeking strong income, fixed-price certainty and a quality new build in a proven high-demand location.
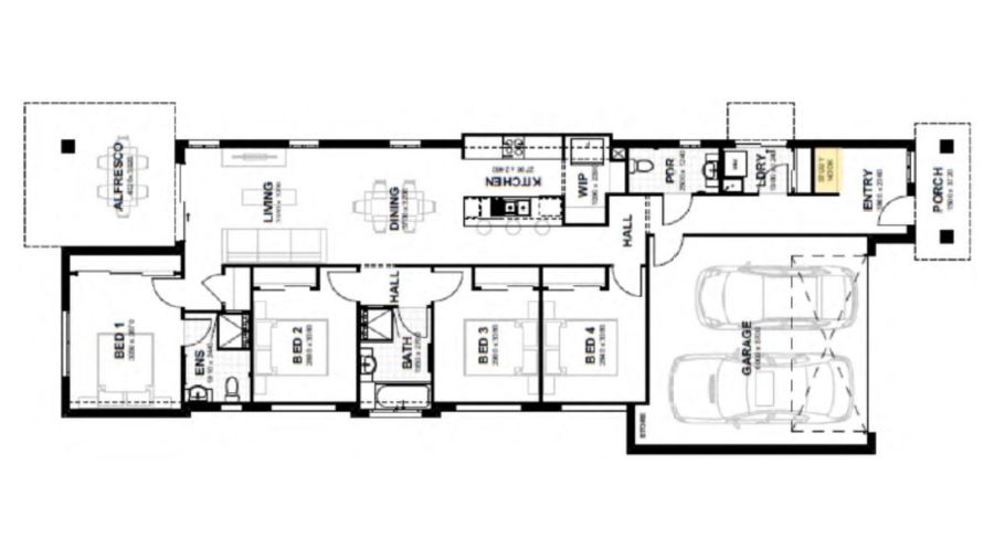
The Brighton 191 - Serenity faade is a well-designed 4-bedroom home offering space, functionality and broad tenant appeal. With approximately 190.84m under roof, the layout includes open-plan kitchen, dining and living zones flowing through to a covered alfresco, creating a practical home suited to families and long-term renters.
Set on a 576m allotment with land registration anticipated March 2026, this property offers rare land size in a modern estate - a key driver of future value and tenant demand.
Delivered as a full turnkey package, the home includes all internal and external finishes, eliminating hidden costs and ensuring the property is ready to rent from day one.
Investment snapshot:
4 bedrooms, 2 bathrooms, 2-car garage
Total home size approx. 190.84m
Land size 576m
Land registration expected March 2026
Full turnkey pricing available:
Gold Package: $987,515
Designer Package: $995,514
Aurum Package: $1,003,514
Estimated rental return $750 - $780 per week
Strong depreciation benefits associated with new construction
The home includes stone benchtops to the kitchen and bathrooms, quality appliances, air-conditioning, LED lighting, roller blinds, ceiling fans, security screens, exposed aggregate driveway, fencing, landscaping, letterbox and clothesline - making this a genuine set-and-forget investment.
Located within the City of Logan, Bannockburn benefits from major infrastructure investment, excellent transport links via the M1 and Logan Motorway, proximity to schools, shopping centres and employment hubs, and a rapidly growing population. Logan's population is forecast to exceed 500,000 residents over the next 15 years, underpinning ongoing housing demand.
This opportunity is ideal for investors seeking:
Strong rental income in a tight market
Large land content for long-term growth
Fixed-price, full turnkey certainty
A modern home in a proven growth corridor
To secure this opportunity or request further details, contact Aaron on 0412 828 702
HOW WE CAN HELP YOU
Through our trusted network of builders and land developers across South East Queensland, Asset Property Partners offers a no cost service that helps everyday Australian's make smarter property choices. Let us help you save time and money whilst taking the hassle out of building!
Disclaimer: All details are indicative only and subject to change. Buyers should undertake their own due diligence. Pricing and inclusions are subject to final confirmation.
Features
4
2
2
- Property ID 21595483
- Air Conditioning

- Built In Robes

- Dishwasher

- Fully Fenced

- Outdoor Ent.

- Split System Aircon

- Dishwasher

- Secure Parking

- Remote Garage

- Hot Water Serviceelectric
- Council Rates

- New Construction

- Split System

Contact
Aaron Weaver
- Mobile: 0412828702
- Office: 0412828702
Property Enquiry
Questions?
Please complete the form below
Your Details
