Full Turn Key House & Land In Bracken Ridge – Exceptional New Build Opportunity In Growing Area Close To Brisbane Cbd
$1,263,700
Full Turn Key House & Land In Bracken Ridge - Exceptional New Build Opportunity In Growing Area Close To Brisbane CBD
Our Turnkey House and Land packages takes the stress out of buying your new home. We have house and land packages that will suit your needs and budget and offer a fixed price contract that includes everything you need to just move in and start living. Just call us anytime on 0412828702 to discuss what we have available.THIS OPPORTUNITY
Looking for a quality home in Bracken Ridge to raise a family and live your ideal life? This fresh and relaxed environment is walking distance to Woolworths, child care, Panama Jacks, Phoenix Bar, Primary & High Schools, parks, Emily Seebohm Swim Centre, skate park & pony club.
With all the infrastructure you could want at your finger tips, Braken Ridge has everything you need.
Major shopping centres like Westfield Chermside and Westfield North Lakes are only 10 minutes away and Brisbane air port only 15 minutes away. Public transport is conveniently located with the bus station a short walk away and Deagon train station close by with Sandgate waterfront only 5 short minutes away.
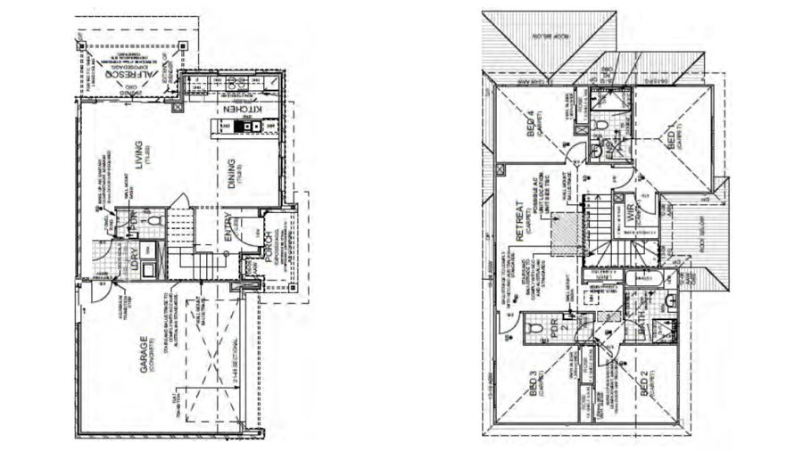
ABOUT THE PROPERTY
You have the option to choose from this design, or we find a design and plan to suit.
Some of property features include:
-Fixed Price Site Costs
-820mm Wide Front Entry Door
-Split System Air Conditioner to Living Room and Bedroom 1
-Roller Blinds To Windows and Sliding Door (Excludes Wet Areas, Window Behind Cooktop & Garage If Applicable)
-Security Screens To Opening Windows & Doors
-Floor Tiling & Carpet Throughout
-Soft close cabinentry
-Cold Water Point To Fridge Space
-600mm Wide Stainless Steel Freestanding Electric Cooker
-Semi Frameless Shower Screens W/Frameless door
-Wall Mounted Vanity Unit With Square Basin
-Smoke Alarms & Quality Low Energy Lighting
-Fencing, Landscaping, Driveway & Path
-Clothesline, Letterbox & Pre-Selected Designer Colour Scheme
Land Size: 520sqm
Build Size: 216sqm
Total Price: $1,263,700 - Full Turn Key
Estimate Rent: $900 - $1000 per week
For more information on this property and others similar in the surrounding area, contact Aaron Weaver on 0412828702
WE CAN HELP YOU FIND ANY HOUSE AND LAND PACKAGE
Through our trusted network of builders and land developers across South East Queensland, Asset Property Partners offers a no cost service that helps everyday Australian's make smarter property choices. Let us help you save time and money whilst taking the hassle out of building!
Call Aaron directly on 0412828702 and let us help you find the best house and land package at the best price.
Features
4
2
2
- Property ID 20385319
- Dishwasher

- Fully Fenced

- Outdoor Ent.

- Split System Aircon

- Dishwasher

- Secure Parking

- Remote Garage

- Hot Water Serviceelectric
- Council Rates

- New Construction

Contact
Aaron Weaver
- Mobile: 0412828702
- Office: 0412828702
Property Enquiry
Questions?
Please complete the form below
Your Details
