Don’t Miss This One! Full Turnkey House And Land Package In Redbank Plains – Quality Build -great Inclusions – Guaranteed Rental Returns!

$1,083,836

Don't Miss This One! Full Turnkey House and Land package in Redbank Plains - Quality Build -Great Inclusions - Guaranteed Rental Returns!

Education, Transport, Convenience, Relaxation & Environment - This Location Has It All!


This turnkey house and land package is situated in a thriving community in Redbank Plains, one of the fastest growing corridors in South East Queensland.

With easy access to arterial roads to make the journey to Brisbane, Ipswich or Gold Coast a breeze and a new connection to the Centenary Highway putting Springfield Central within a 5 minute drive this is a position perfect estate.

With many hectares of green open spaces including parks, sports fields, and cycling and walking trails that lead to the 2,500ha White Rock Spring Mountain Conservation Park this is a location with nature at your doorstep.

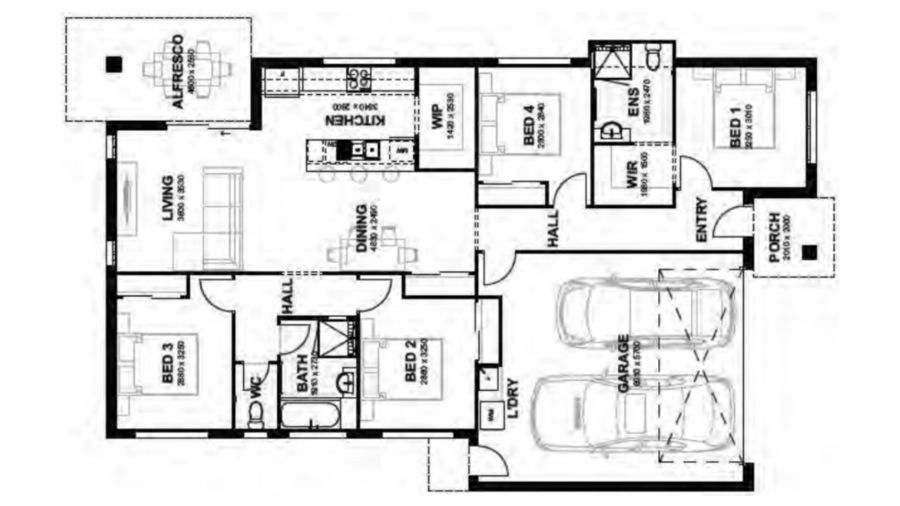
ABOUT THE OPPORTUNITY

Turnkey house and land package: 4 bedroom, 2 bathroom, 2 car + Alfresco

Land Size: 937sqm

Land Price: $675,000

Build Size: 178sqm

Build Price: $408,836

Total turnkey package: $1,083,836

Anticipated Rental: $650 - $700 per week (guarantee available)


Builder Deposit (Separate from land):

$5,000 deposit payable to the below with EOI


Land Terms:

Unconditional Contract Requirement

Initial Deposit: $5,000

Balance of 5% deposit requirement 7 days from contract signing

Land deposit to be paid after EOI accepted

Settlement 21-28 Days


THE CONFIGURATION

4 Bedrooms
Kitchen, Living, Dining
2 Bathrooms Including Ensuite
Double Car Garage
Outdoors Alfresco

INCLUSIONS

- Ducted Air Conditioning
- Solar System
- 2400 Ceiling Height
- Stainless Steel Appliances
- Builders 6 year Structural Guarantee
- Site Works
- Tiled Alfresco Slab
- LED Light Fittings
- Custom Vanities
- 600 x 600 porcelain tiles
- Stone Benchtops
- Waterfall Benchtop in Kitchen
- 600 Stainless Steel Appliances
- Dishwasher
- High Quality Fittings
- All Floor Coverings
- Blinds to Windows
- Security Screens to Entry
- 1200mm Front Entry
- Safety screens throughout
- Ceiling Fans
- Low Maintenance Landscaping
- Exposed Aggregate Driveway
- Developer Approved 1.8m High Fencing
- Rendered Letterbox
- Clothesline
- TV Antenna
- Connections to services


ABOUT THE AREA

If you understand the importance of building in a bright and vibrant community where people take pride in their homes and value the importance of creating lasting memories in a safe community with valuable infrastructure close by, then you're going to love this house and land package.

Education - Within a short distance you will find a number of childcare centres, primary schools, high schools, private schools and universities. So whatever level or style of education your family needs, Eden's Crossing is connected to it all.

Transport - Direct access to the Centenary Highway, connecting the estate to Brisbane, Ipswich and the Gold Coast is a breeze. With local buses and nearby train stations easy to access, transport has been well considered and implemented with future plans in place as the community grows.

Convenience - Everything is on your door step or just a short drive away. Shopping centres, medical, dental, bakery, post office, major banks, vets, gyms, the estate has access to everything you need.



Two contracts: Land and House, pay stamp duty only on the land.

Completing an expression of interest and an initial deposit of $1,000 will secure this property.

For further information contact Aaron on 0412828702


HOW WE CAN HELP YOU

Through our trusted network of builders and land developers across South East Queensland, Asset Property Partners offers a no cost service that helps everyday Australian's make smarter property choices. Let us help you save time and money whilst taking the hassle out of building!





Disclaimer: Disclaimer: All images and descriptions are indicative and may vary from the final product. All information contained herein is gathered from sources we believe to be reliable. Intending purchasers should satisfy themselves by clarification prior to purchase. Prices stated are subject to availability. All plans are copyright in whole and in part.

Features

  • 4
  • 2
  • 2
  • Property ID 20892236
  • Air Conditioning
  • Built In Robes
  • Dishwasher
  • Fully Fenced
  • Outdoor Ent.
  • Split System Aircon
  • Dishwasher
  • Secure Parking
  • Remote Garage
  • Hot Water Serviceelectric
  • Council Rates
  • New Construction
  • Split System

Contact

Aaron Weaver

  • Mobile: 0412828702
  • Office: 0412828702

Property Enquiry

Questions?
Please complete the form below

Your Details

Keep Informed

YesNo

Last Updated On: 11 December,2025 02:44:31

Search From What We Currently Have Listed

Or Use Our Free Property Finder Service

Property Finder

We’ll search our entire builder network to find any off market properties

Book a free one hour, no-obligation strategy session

If you’re looking to invest in property, let us show you some smarter property choices.

  • captcha
×